SERVICE PHONE
363050.com发布时间:2025-10-04 13:27:50 点击量:
渝超,重庆城市足球联赛,渝超赛程,渝超直播,渝超积分榜,渝超球队/渝超(重庆城市足球联赛)为重庆足球迷带来最新赛程、比分、积分榜、球队信息及直播入口,精彩赛事一网打尽。您当前使用的浏览器版本过低,可能存在安全风险,建议升级浏览器,或者用以下浏览器浏览
刚刚,天府半岛七期77#取得预售许可证,建面约120-140㎡,精装单价约1.3w-1.5w元/㎡,合计124套房源!
有多少人还记得去年3月的摇号盛况,180套准现房,精装单价1.24万/㎡起,约5.2w组家庭摇号,那中签率,比“985”、“211”录取率还低!
但自那以后,项目三次取证,均为大平层和联排产品,建面约235㎡+,门槛已来到330w,明显不是刚需、刚改的菜!
熟悉的配方,还是熟悉的味道。但不同的是,本批次为期房,预计2026年下半年交付!(具体交付时间以售楼部为准哈)
周边配套不多提,感兴趣的小伙伴可查看往期踩盘链接:恒大天府半岛已取证!总价约114万起,1124套房源!
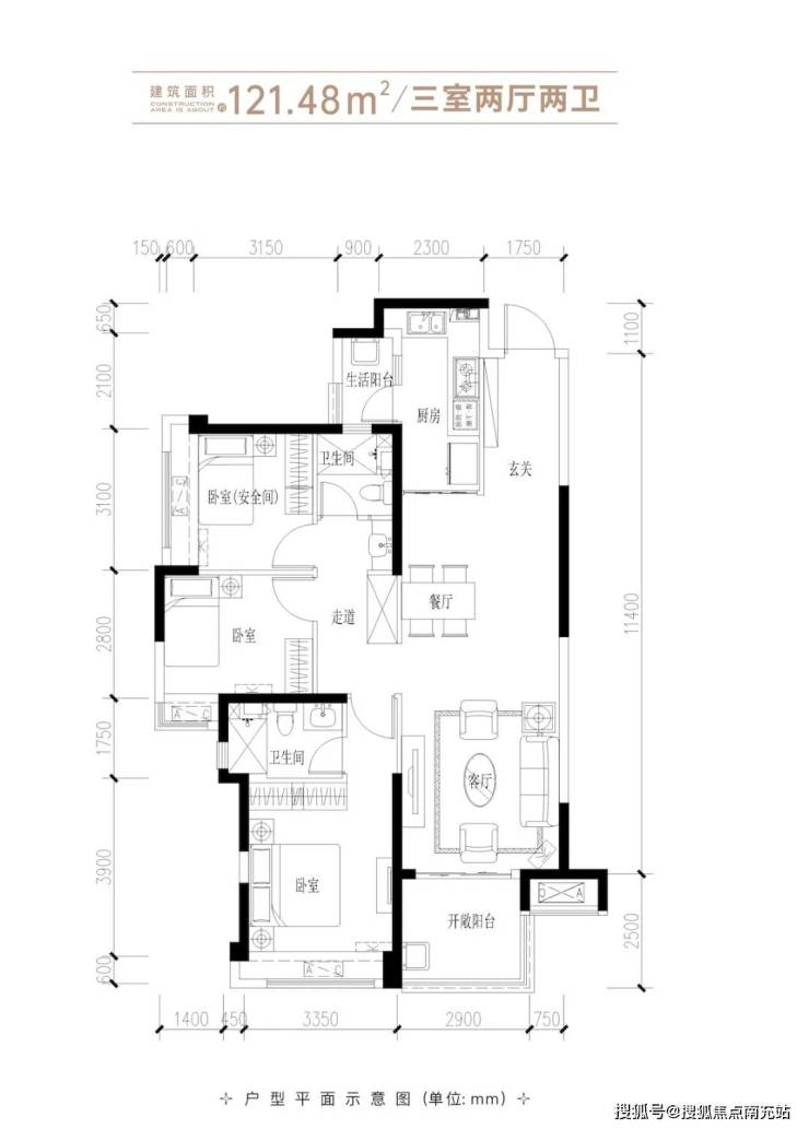
了解天府半岛的小伙伴应该都知道,7期产品,大多为2梯5户、3梯6户的48F超高层,建面约90-120㎡套三、套四户型,坦率说,很刚!
拿121户型来说,竖厅设计、进深超过10m,但开间只有6m出头,阳台只有约2.9m;两个次卧面积都不足10㎡,整体相对紧凑、无太多浪费空间。
声明:本文由入驻焦点开放平台的作者撰写,除焦点官方账号外,观点仅代表作者本人,不代表焦点立场。
【中粮观澜铂悦】售楼处热线 (已认证)【中粮观澜铂悦】项目客户经理电话:(微信同号)温馨提示:为了给您提供更高更好的接待服务质量,看房请提前致电售楼处预约!【有免费看房车接送服务,如需预约,请致电售楼处】
【中粮武侯瑞府】售楼处热线 (已认证)【中粮武侯瑞府】项目客户经理电话:(微信同号)温馨提示:为了给您提供更高更好的接待服务质量,看房请提前致电售楼处预约!【有免费看房车接送服务,如需预约,请致电售楼处】
【三岔TOD蔚澜之城】售楼处热线 (已认证)【三岔TOD蔚澜之城】项目客户经理电话:(微信同号)温馨提示:为了给您提供更高更好的接待服务质量,看房请提前致电售楼处预约!【有免费看房车接送服务,如需预约,请致电售楼处】
【中铁花溪美庐】售楼处热线 (已认证)【中铁花溪美庐】项目客户经理电话:(微信同号)温馨提示:为了给您提供更高更好的接待服务质量,看房请提前致电售楼处预约!【有免费看房车接送服务,如需预约,请致电售楼处】
【青城颐养中心】售楼处热线 (已认证)【青城颐养中心】项目客户经理电话:(微信同号)温馨提示:为了给您提供更高更好的接待服务质量,看房请提前致电售楼处预约!【有免费看房车接送服务,如需预约,请致电售楼处】
成都三岔TOD蔚澜之城售楼部电线月购房新政策解读,特价房源限时活动,金九银十多重礼遇福利抢先体验!
重庆「华润置地嘉宸」售楼热线已开通,预约专享一对一接待,内部购房福利限时放送,9月最新价格及房源信息抢先了解。
重庆「中建壹品南滨星光城」售楼热线月最新动态/一房一价实时查询/购房政策权威解读,置业指南及时更新!
